Fontenilles

Fontenilles 31470

Permis d'aménager en cours d’instruction . LANCEMENT COMMERCIAL !

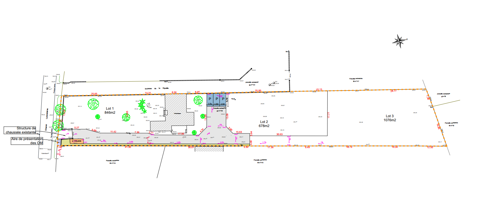
2 Terrains à bâtir de 678 m² et 1076 m²

Libre choix du constructeur

Viabilisés : Eau potable, électricité, télécom, eaux usées, tout à l'égout

Les plus du terrain

garden

Cadre intimiste et verdoyant

garden

Construction libre

garden

Secteur prisé

Le lieu en résumé

Découvrez deux terrains d’exception à Fontenilles, issus d’une découpe parcellaire, offrant respectivement 678 m² et 1 076 m². Idéalement situés dans un cadre verdoyant, calme et privilégié, ces terrains bénéficient d’un environnement résidentiel rare sur le secteur.

Un programme intimiste pour construire votre maison dans un écrin de tranquillité, à proximité des commodités tout en profitant de la nature.

Les prix et disponibilités

N° DE LOT SURFACE M2 SDP M2 prix disponibilité PLANS documents
2 678 m2 m2 140,000€

Libre

3 1076 m2 m2 195,000€

Option

icon

Vous avez des questions ou êtes interréssé par un terrain ?

N’hésitez pas à nous contacter !

Vivre à

Fontenilles 31470

Fontenilles – Cadre verdoyant et paisible

Située à environ 25 km de Toulouse, Fontenilles offre un cadre calme et verdoyant, avec des services de proximité et un accès facile à la métropole. Idéale pour ceux qui recherchent tranquillité et qualité de vie à deux pas de la ville.

Voir nos autres terrains

En cours

Le Clos de Gauarrat

L'Isle Jourdain 32600

icon-arrow-right

En cours

Plaisance du Touch

Plaisance-du-Touch

icon-arrow-right

En cours

Dremil-Lafage

Dremil-Lafage 31280

icon-arrow-right